

“Krautländer”
Gemeinschaftshaus für Salach
Mehrgenerationenhaus mit Kindertageseinrichtung , Salach
Realisierungswettbewerb im offenen Verfahren | IBA 27 Stuttgart
2021 | 2.Preis
in Arbeitsgemeinschaft mit > Mettler Landschaftsarchitektur, Berlin
Städtebau
Das “Krautländer” bildet das neue Quartierszentrum für Salach. Ein grosses Haus, das alles unter einem Dach vereint, eine Art multifunktionales "Regal", welches flexiblen und aneigenbaren Raum für eine vielseitige und diverse Nutzung bietet. Der längliche, dreigeschossige Riegel, welcher sich über die gesamte Grundstückslänge parallel zu den Gleisen erstreckt, baut einen Bezug zum großmaßstäblichen Schachenmayr Areal auf. Über das Gleisbett hinweg wird dadurch ein angemessener räumlicher Abschluss des sich entwickelnden Quartiers „Mühlkanal“ ausgebildet. Durch die Feingliedrigkeit des Baukörpers mit außenliegenden Treppen, Loggien und dem leicht auskragenden Dach wird typologisch ein Bezug zu der unmittelbaren Nachbarschaft aufgebaut. Das Gebäude agiert somit nicht nur funktional, sondern auch stadträumlich als Vermittler zwischen beiden Maßstäben und schafft eine klare Gliederung der entstehenden Freiräume.
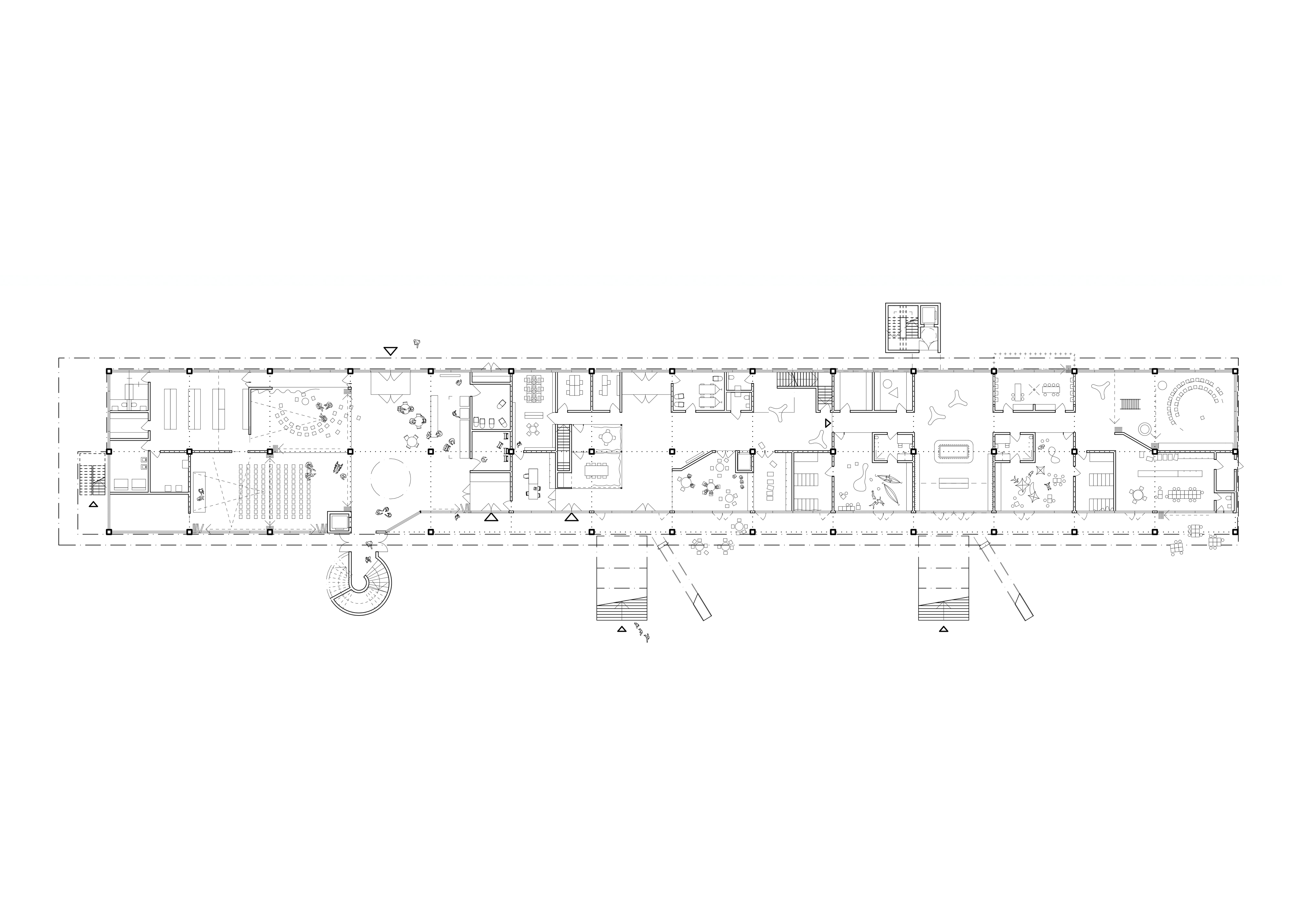
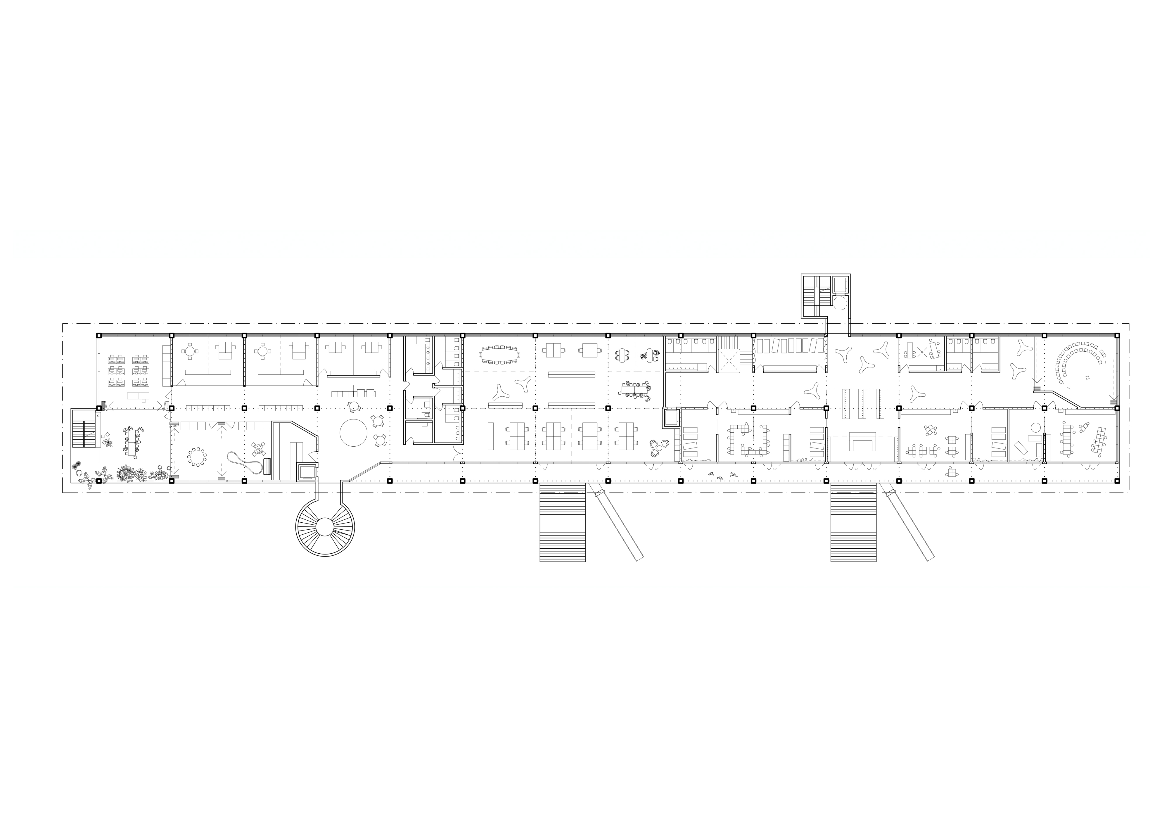
Grundrissorganisation
Alle Nutzungen sind in einem langen, dreigeschossigen Baukörper vereint, welcher über ein langes Dach zu einem Haus zusammengefasst wird. Dabei befindet sich das Bürgerhaus mit den Begegnungs- und Veranstaltungsräumen im westlichen Teil des Gebäudes und damit am wichtigen städtebaulichen Knotenpunkt zum Quartiersplatz. Die Kindertageseinrichtung entwickelt sich gegen Osten. Alle Nutzungen sind mit offenen Laubengängen nach Süden hin offen. Die Struktur des Hauses funktioniert als „Regal“ welches verschiedene Arten der Organisation zulässt und somit alle Nutzungen flexibel aufnehmen kann. Gleichzeitig ist die Struktur so robust, dass im Ausbau auch auf zukünftig wechselnde Bedürfnisse reagiert werden kann. Der „offene Treff“ befindet sich im Herzen der Anlage und bildet einen Raum für Begegnung und Gemeinschaft. An diesen angegliedert befinden sich die Veranstaltungsräume, welche wiederum einen direkten Bezug zum Außenraum haben. Der offene Treff ist über einen zentralen Luftraum mit dem Familienbereich und dem Jugendtreff verbunden. Die Kinderkrippe befindet sich im Erdgeschoss mit direkt angegliederten Freiräumen. Darüber befindet sich der Kindergarten samt Erweiterungsfläche – diese wird als Co-Working für Startups / Schulfirmen und Initiativen aus der Bürgerschaft zwischengenutzt – sowie der Familienbereich. Im zweiten Obergeschoss finden der Jugendtreff und die Flächen für soziale Bedarfe – Mehrgenerationenwohnen mit einem gemeinschaftlichen Wohnkonzept – ihren Platz. Alle verfügen über einen unabhängig funktionierenden Zugang.
Konstruktion +Nachhaltigkeit
Die Konstruktion des Hauses soll maximal einfach sein. Das kompakte Gebäudevolumen mit gleichbleibenden Achsabständen ermöglicht einen hohen Grad an Vorfertigung. Der Holz- Betonhybridbau soll lediglich verschraubt werden damit ein späterer Rückbau / Recycling möglich ist. Es is eine systematische Trennung zwischen Rohbau und Ausbau, sowie der haustechnischen Erschließung vorgesehen. Die nach Süden ausgerichtete Dachfläche soll komplett mit PV zur Energiegewinnung belegt werden – ein Sonnenkraftwerk. Das Haus wird somit sowohl auf einer sozialen Ebene als auch unter dem Aspekt der Nachhaltigkeit zu einem neuen Kraftfeld von Salach.
Freiraum
Die Neugestaltung des Freiraums geht auf die besonderen Gegebenheiten des Ortes ein und verleiht dem neuen Mehrgenerationenhaus mit Kindertageseinrichtung einen eigenen, unverkennbaren Charakter. Eine großzügige Parkanlage, die gleichzeitig die Lärmschutzfunktion übernimmt, stößt von Süden direkt an den Neubau. Der modellierte Freiraum fließt um die Neubauten und verbindet sie mit den angrenzenden Quartieren. Gleichzeitig wird eine funktionale und ökologische Vernetzung entlang der Bahntrasse gestärkt.Durch die starke städtebauliche Setzung entstehen unterschiedliche Freiraumtypologien: vom öffentlich genutzten Eingangsbereich an der Hermannstraße, der als eine beruhigte Verkehrszone ausgebildet wird und sich über die Weberstraße mit dem Bahnhof verbindet, über die halböffentliche Vorzone vor dem Eingang und halbprivaten Spielbereichen der Kita bis zur öffentlichen Parkanlage. Direkt an der Kreuzung Hermannstraße / Messelbergstraße bildet ein städtischer Platz den intensivgenutzten Freiraum. Zusammen mit der Weberstraße bildet er ein großzügiges Platz-Ensemble. Die zwischen die Bauminseln platzierte Sitzgelegenheiten und Spielflächen schaffen einen Treffpunkt für die AnwohnerInnen und BesucherInnen. Vom Vorplatz, der die neue Adresse markiert, wird der Baukörper erschlossen. Die Organisation des Freiraums reagiert auf den bestehenden Kontext und die neue bauliche Setzung. Diese gliedert den Planungsperimeter in zwei Räume mit unterschiedlichen Qualitäten. Die nördliche Seite gewährleistet die Verkehrserschliessung und Möglichkeiten zur Parkierung und Anlieferung. Auf der Südseite der städtebaulichen Figur wird der Außenraum als ein grüner Hybrid zwischen Quartierspark mit grosszügigen Grünflächen der Kindertageseinrichtung verstanden. Das Rückgrat des Aussenraumes bildet der öffentliche Fuß- und Radweg, der die Anlage entlang der topographisch ausgebildeten Lärmschutzwand durchquert.
> IBA 27
> wettbewerbe aktuell
> competitionline









