
ROSPORT
Transformation einer alten Schreinerei in ein Wohnhaus, Rosport (Lu)
Realisierungsprojekt
seit 2018 - Stand Vergabe
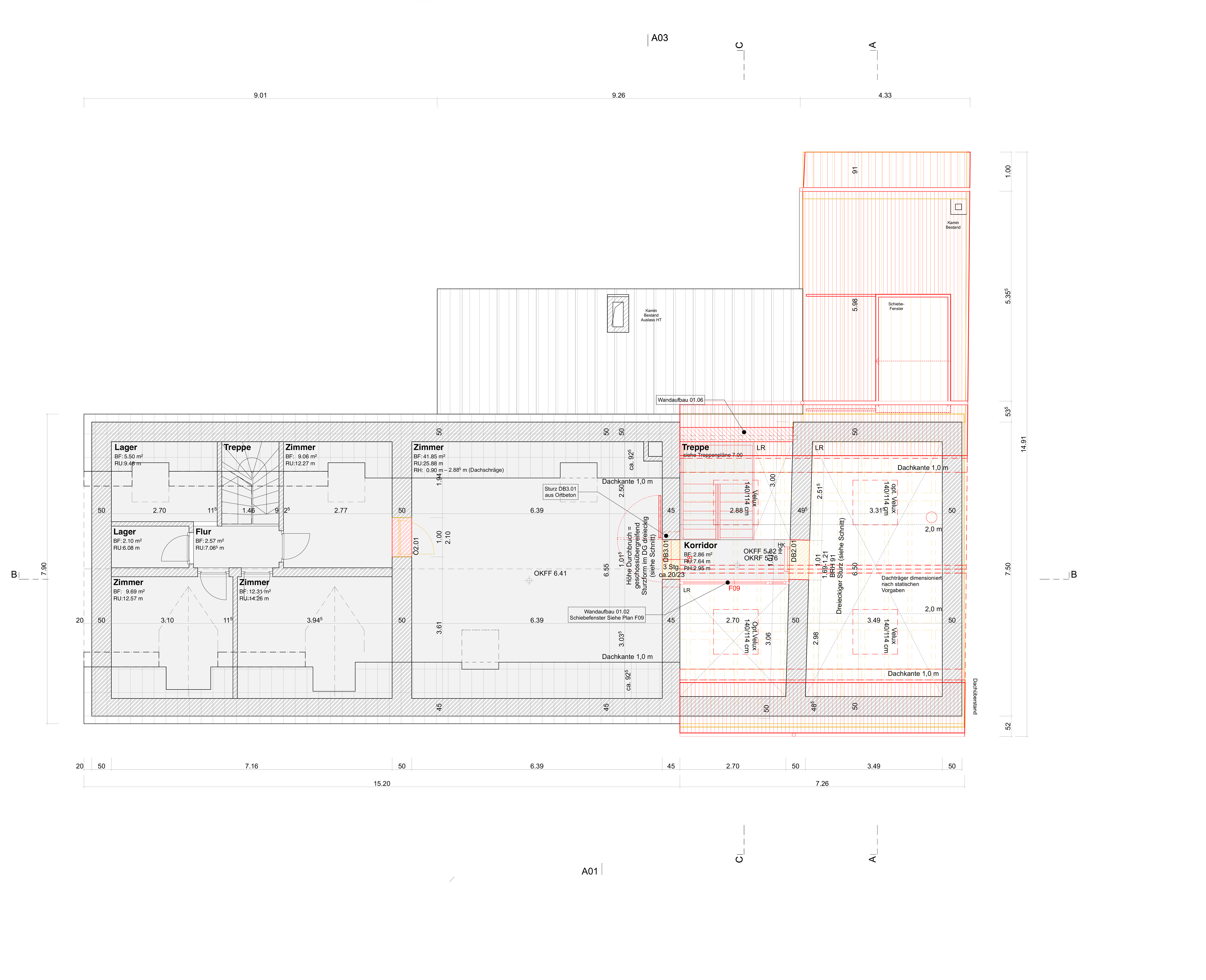
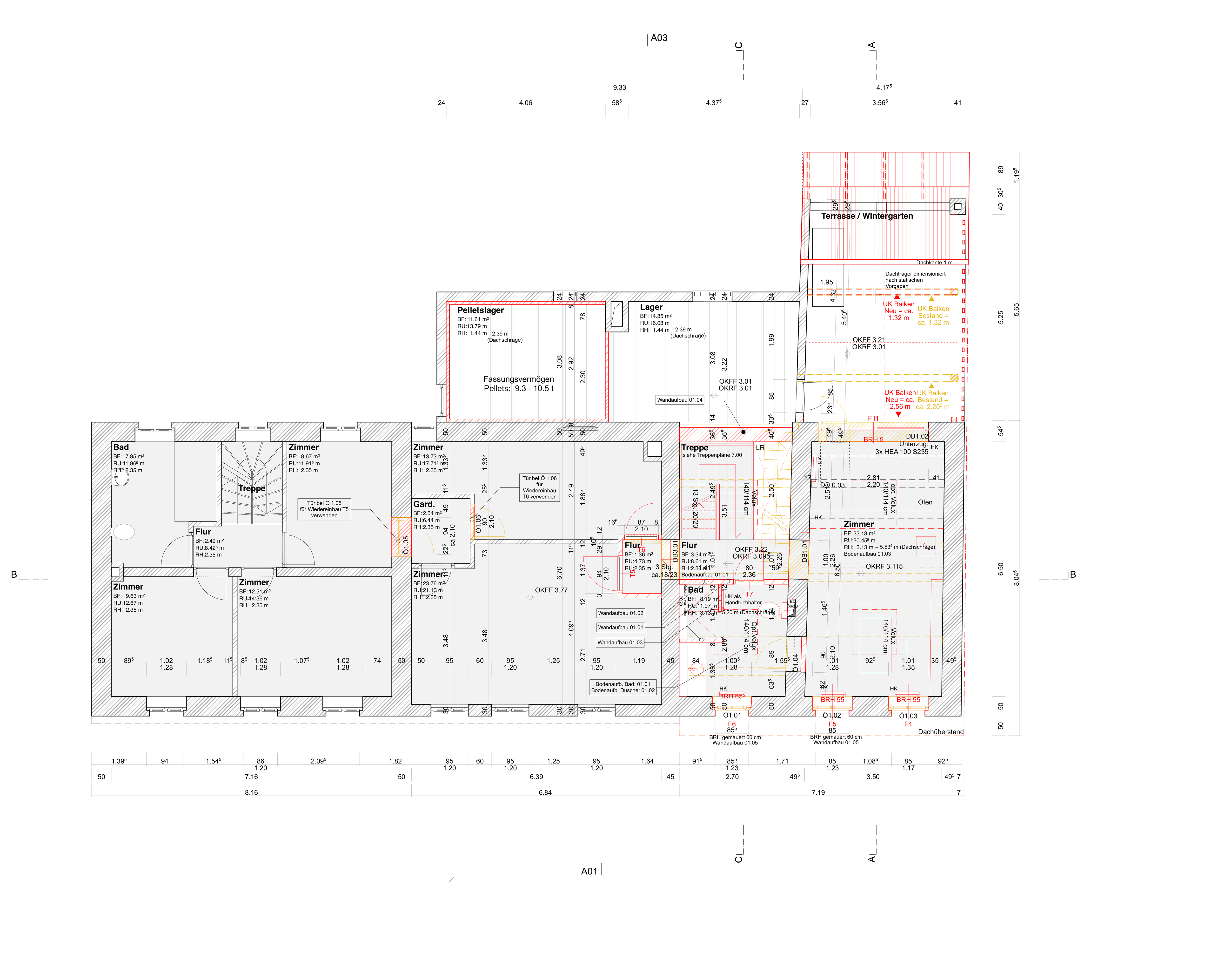
Der ursprünglich industriell und landwirtschaftlich genutzte Gebäudekomplex im Dorfkern von Rosport, wurde über die Jahrzehnte Stück für Stück in Wohnraum transformiert. Als letzter Baustein dieser Umnutzung folgt nun die alte Schreinerei. Diese wurde über unterschiedliche Etappen hinweg vom Ende des 19. Jh. bis in die 50er Jahre errichtet. Neben der behutsamen Freilegung und Instandsetzung der vielschichtigen Substanz – von Lehm-Holz-Verbunddecken bis Stahl-Beton-Verbunddecken – wird der Bestand durch gezielte bauliche Massnahmen zu einem hellen, grosszügigen Wohnhaus. Eine zentrale Treppenanlage erschliesst und verbindet die Hausteile, Durchbrüche gewährleisten raumübergreifende Sichtachsen. Dem Charakter des Gebäudes entsprechend, kommen einfache, direkte Materialen zum Einsatz.







