
LUX GUYER
Umbau eines Mehrfamilienhauses von Lux Guyer, Zürich
Realisierungsprojekt, SIA Leistungsphasen 1-5
2019-2020
in Arbeitsgemeinschaft mit Theres Hollenstein
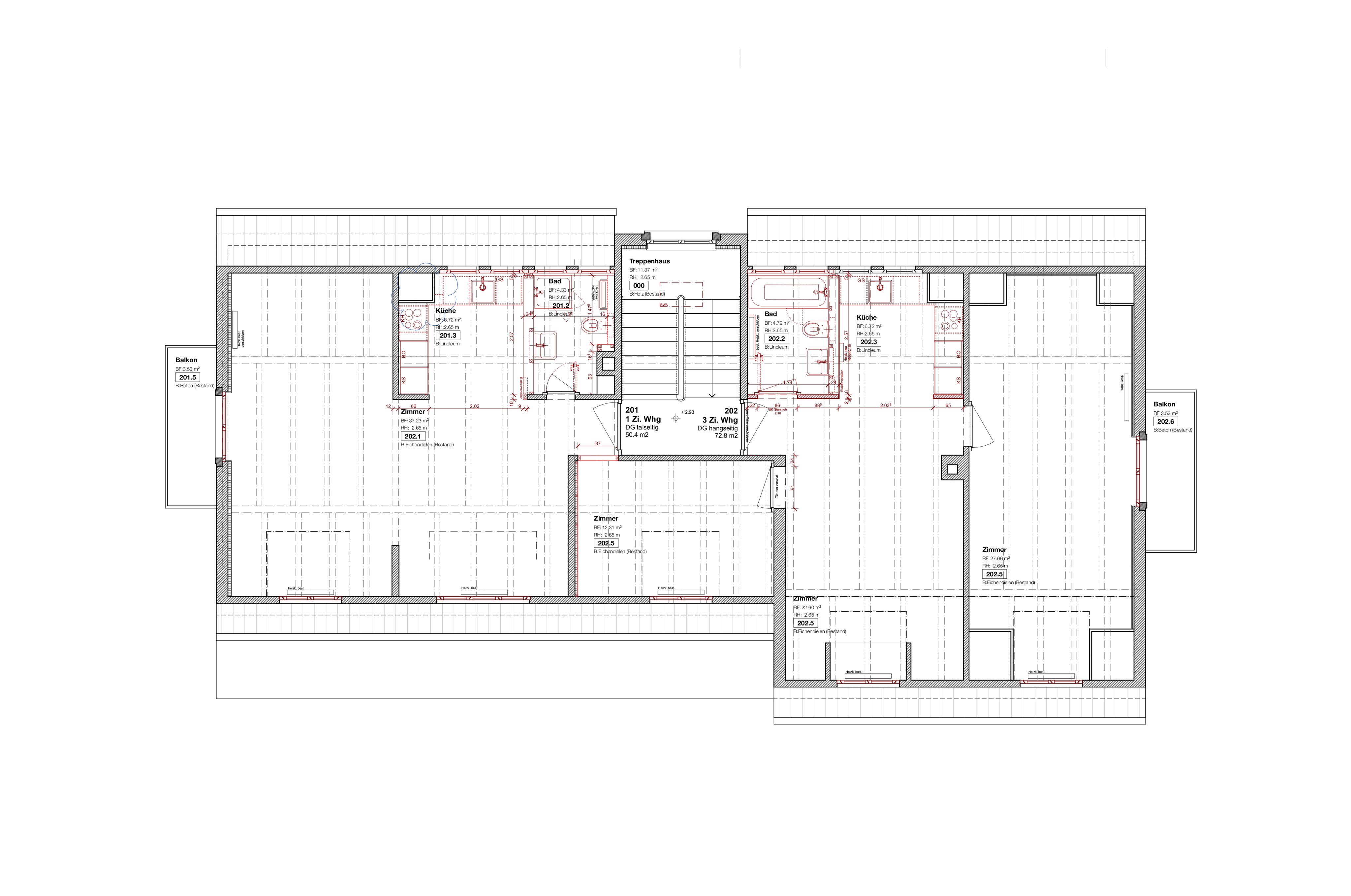
Die Züricher Architektin Lux Guyer war die erste weibliche, selbstständige Architektin der Schweiz. In den 1930er Jahren war sie, mit fortschrittlichen Wohnungsbauprojekten eine Pionierin im Schweizer Wohnungsbau. Die Siedlung an der Zollikerstrasse 257 besteht aus 5 Mehrfamilienhäusern in Zürich Seefled. Eines dieser Mehrfamilienhäuser gilt es, nach einem langjährigen Investitionsstau komplett umzubauen und zu sanieren.
Die Architektur von Lux Guyer ist bekannt wegen einer grossen Farbvielfalt. Durch eigenständige Renovationen der Mieter ist der Charme der wohlbedachten Farben- und Materialkombinationen nicht mehr ersichtlich. Im Zuge des Umbaus soll dies wieder im Sinne der ursprünglichen Planung aufgefrischt werden. In der Wohnungsdisposition werden durch kleinere Eingriffe grosse Mehrwerte geschaffen.
Fotografie: Linda Suter
Fotografie: Baustelle: Marlène Witry | Theres Hollenstein
> Tec21_espazium

















